Max-Delbrück-Centrum Haus 10
Sanierung und Umnutzung des ehemaligen Rechenzentrums als offene Bürostruktur
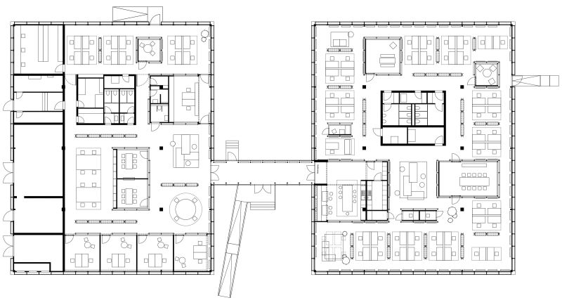
Das ehemalige Rechenzentrum auf dem Campus Berlin-Buch wird als offene Bürostruktur für die IT-Abteilung des Max-Delbrück-Centrums umgenutzt.
Identitätsstiftend für das Gebäude ist das freigelegte Raumtragwerk. Es prägt den offenen Raum darunter und ermöglicht mit seinen großen Spannweiten eine freie Grundrissgestaltung. Die unteren Knotenpunkte des Raumtragwerks bilden den Ausgangspunkt des Konzepts. Wir haben ein Regalsystem entwickelt, dessen Pfosten zwischen den Knotenpunkten und Fußboden eingespannt wird. Dieses System wird auch zur Verkleidung der eingestellten Besprechungsboxen verwendet. Regale und Boxen schaffen Raumbereiche, die die Organisation der Arbeitsgruppen widerspiegelt, Bewegungszonen von den Arbeitsplätzen abgrenzt sowie Stauraum und raumakustische Verbesserungen ermöglicht.
Während die offenen Raumbereiche in einem zurückhaltenden Material- und Farbkonzept realisiert werden, sind die Boxen in unterschiedlichen Farben monochrom gestaltet.
Ziel des Entwurfs ist es den Wunsch der Mitarbeiter nach Geborgenheit mit den Vorteilen der offenen Bürolandschaft konzeptionell und gestalterisch optimal zu verknüpfen.
