Thielecksiedlung
Sanierung eines denkmalgeschützten Wohnhauses
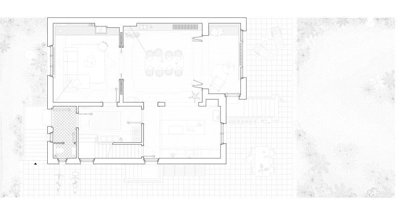
Das Wohnhaus ist Teil der Thielecksiedlung, einer Typensiedlung aus dem Jahr 1926, die für das gehobene Bürger- und Beamtentum der Weimarer Republik in Berlin Dahlem gebaut wurde. Die gesamte Thielecksiedlung ist als Baudenkmal erhalten. Dabei stehen nicht nur die Fassaden der Reihen- und Doppelhäuser unter Denkmalschutz, sondern auch alle Bauteile und Innenräume. Neben der behutsamen Sanierung und Modernisierung der Wohnräume haben wir das ehemals nur in Teilen zu Wohnzwecken genutzte Dachgeschoss zum Elternbereich umgestaltet. Hierfür wurde das mit Schadstoffen belastete Dach komplett entkernt. Nur die Holzkonstruktion wurde erhalten und als sichtbares Gestaltungselement in das Dachgeschoss integriert. Die neuen Räume öffnen sich bis unter den Dachfirst und sind in einer komplexen Raumgeometrie miteinander verbunden. Zusammen mit den Bauherren haben wir uns für eine sehr reduzierte Farb- und Materialpalette entschieden. Das Projekt zeichnet sich darüber hinaus besonders durch die Auswahl sehr hochwertiger Materialien und Produkte aus.
